Sainte-Lucie de Porto-Vecchio, Arasu, terrain viabilisé, permis de construire, à proximité des plages
RV842-5V – Arasu
À quelques minutes seulement des eaux turquoise de Saint-Cyprien et de la plage emblématique du Cabanon Bleu, ce terrain d’environ 2 096 m² constitue la dernière opportunité dans un lotissement confidentiel de 7 lots.
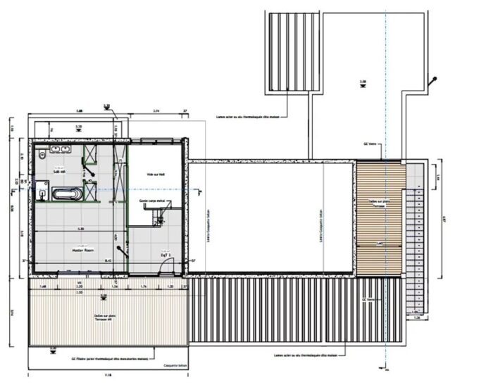
Vendu avec un permis de construire purgé, le projet prévoit une villa de 200 m², un garage de 46 m² et une piscine de 60 m².
Le chantier est déjà en cours, avec un accompagnement sur-mesure assuré par l’architecte du domaine.
Le terrain, raccordé au tout-à-l’égout, bénéficie d’une belle vue dégagée dans un environnement naturel et paisible, idéal pour profiter pleinement de l’art de vivre estival du sud de la Corse.
Parfaitement situé, le lotissement se trouve à proximité de l’aéroport de Figari et du port de Porto-Vecchio, ce qui en fait un lieu de villégiature prisé.
Honoraires à la charge du vendeur
-
Plage à pied
-
Proche plage
-
Domaine privé
-
Superficie2 096 m²
Proximités
-
Aéroport45 km
-
Centre ville15 km
-
Crèche7 mètres
-
Golf20 km
-
Mer2 km
-
Plage2 km
-
Port16 km
-
Supermarché7 km
-
Cinéma8 km
-
École primaire7 km
-
Médecin7 km
-
Tennis7 km
Ce bien vous intéresse ?
Cette propriété est présentée par:

