Arasu, Terrain à bâtir d’environ 2 059 m² avec permis de construire, plage à pied
RV842-E7 – Arasu
À quelques pas des eaux cristallines de la baie de Saint-Cyprien, ce terrain d’environ 2 059 m² s’inscrit dans un lotissement confidentiel de 15 lots, au cœur d’un environnement préservé, familial et résidentiel.
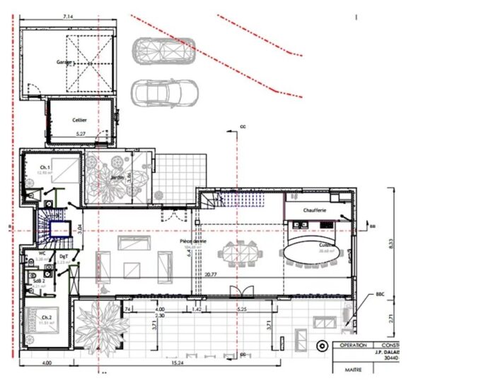
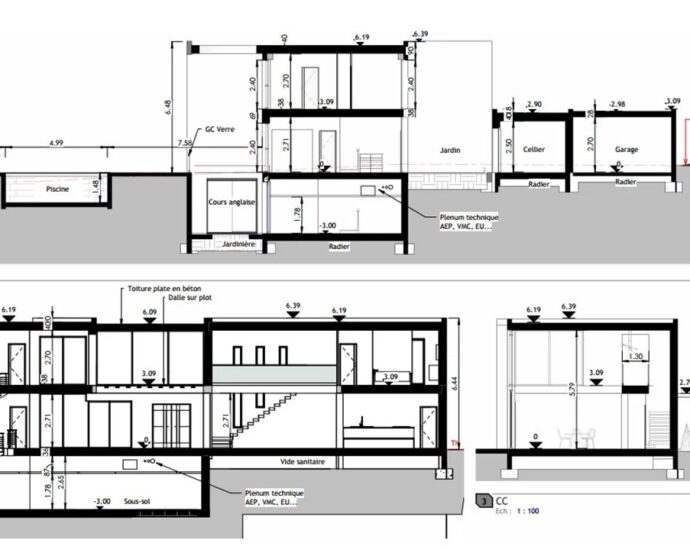
Vendu avec un permis de construire purgé, le projet prévoit une villa de 240 m² de surface plancher, accompagnée d’un garage de 50 m² et d’une piscine de 65 m². Le suivi de la construction est assuré par l’architecte du domaine, pour un accompagnement personnalisé.
Entièrement viabilisé et raccordé au tout-à-l’égout, le terrain offre un cadre naturel paisible, idéal pour profiter du charme estival du littoral corse, entre maquis et bord de mer.
Facilement accessible depuis l’aéroport de Figari ou le port de Porto-Vecchio, ce lieu offre un emplacement privilégié pour une résidence secondaire ou un projet de vie.
Honoraires à la charge du vendeur.
Les frais liés au permis de construire et à la maîtrise d’œuvre sont à prévoir en supplément.
-
Plage à pied
-
Proche plage
-
Domaine privé
-
Superficie2 059 m²
Proximités
-
Aéroport45 km
-
Centre ville15 km
-
Commerces7 km
-
Mer1 km
-
Plage1 km
-
Port17 km
-
Cinéma7 km
-
Crèche7 km
-
Hôpital/clinique15 km
-
Médecin7 km
-
Supermarché7 km
-
Tennis7 km
Ce bien vous intéresse ?
Cette propriété est présentée par:

