Arasu , Terrain à bâtir d’environ 2 499 m² avec permis de construire et plage à pied
RV842- E2 – Arasu
Au cœur de la baie de Saint Cyprien, avec la mer à deux pas, ce terrain d’environ 2 499 m² vous offre un cadre de vie idyllique, parfait pour profiter des longues journées d’été et des douces soirées ensoleillées.
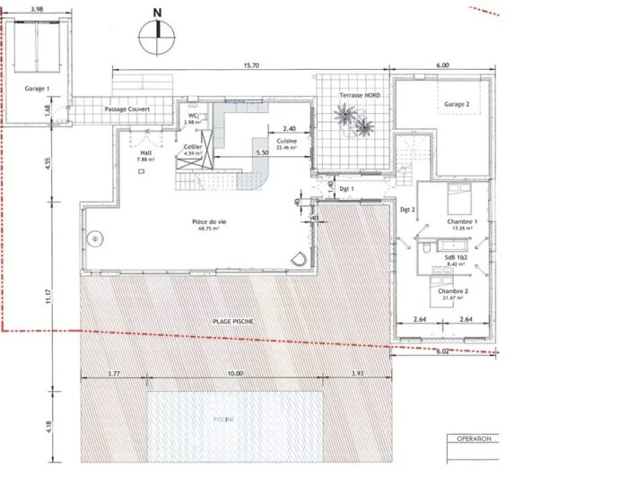
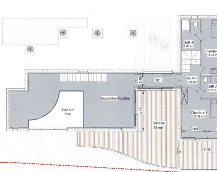
Le projet prévoit la construction d’une villa contemporaine de 210 m², pensée pour le confort et la convivialité : un grand hall d’entrée, une lumineuse pièce à vivre avec cuisine ouverte, 2 chambres, une salle de douche, un cellier, 2 garages, et à l’étage, une suite parentale avec dressing et salle de douche privative. À l’extérieur, une vaste piscine de 63 m² vous invite à la détente sous le soleil.
Ce terrain fait partie d’un charmant lotissement de 15 lots viabilisés, niché dans un cadre résidentiel paisible, idéal pour les familles.
La plage de Saint-Cyprien est accessible à pied, parfait pour vos escapades baignades ou balades au coucher du soleil.
Situé à proximité de l’aéroport de Figari et du port de Porto Vecchio, ce lieu vous assure un accès facile à toutes les commodités, tout en gardant le calme d’un vrai havre de paix.
Honoraires à la charge du vendeur.
-
Plage à pied
-
Proche plage
-
Domaine privé
-
Superficie2 499 m²
Proximités
-
Aéroport45 km
-
Centre ville15 km
-
Commerces7 km
-
Mer1 km
-
Plage1 km
-
Port17 km
-
Cinéma10 mètres
-
Crèche7 km
-
Hôpital/clinique15 km
-
Médecin7 km
-
Supermarché12 km
-
Tennis7 km
Ce bien vous intéresse ?
Cette propriété est présentée par:

